Apartamentos Tipos (Varanda Gourmet) na Região do Bairro Santa Inês | BH Apartamentos 100% Concluídos

A partir de:

R$662.000

O Residencial Sylvia Miranda foi planejado para quem não abre mão de privacidade e sofisticação. Com uma estrutura exclusiva de apenas 8 unidades, o empreendimento garante um ponto estratégico na região do Bairro Santa Inês | BH, ideal para o bem-estar da sua família.

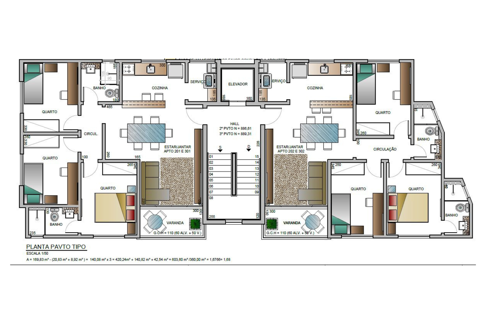
As plantas oferecem apartamentos tipos 3 quartos, com áreas totais aproximadas em 77m², possuem 2 vagas de garagem em linha, acabamentos sofisticados em porcelanato e bancadas em granito.

Possuem varanda gourmet integrada, onde cada detalhe técnico foi pensado para a sua conveniência.

Infraestrutura para ar-condicionado, água quente e medição individualizada água/gás.

O empreendimento possui elevador Premium e segurança na portaria com sensores infra-vermelhos. 

aproximadamente 77 m²

3 Quartos

2 Banheiros

2 Vagas em Linha

Quer receber informações sobre o empreendimento?

Deixei seu Whatsapp para a nossa equipe entrar em contato e agendarmos uma visita.

Ajudamos você a investir em imóveis comSEGURANÇA

Escolher um imóvel envolve muito mais do que preço ou aparência.
Envolve prazo, execução, qualidade construtiva e confiança em quem está por trás da obra.

Desde 2017, a Construtora Aprimorar atua com incorporações, construções e reformas, oferecendo imóveis pensados para quem busca segurança patrimonial, previsibilidade e valorização no médio e longo prazo.

Qualidade de execução

Cada projeto é desenvolvido com foco em padrão construtivo, escolha consciente de materiais e acompanhamento técnico em todas as etapas da obra.

Atendimento profissional e transparente

Você entende o processo antes de decidir. Apresentamos prazos, etapas e cenários de forma clara, para que sua escolha seja segura e bem fundamentada.

Veja a planta doAPARTAMENTO TIPO do Residencial Sylvia Miranda

Viver no Residencial Sylvia Miranda é unir o prestígio de uma arquitetura moderna e imponente à liberdade de ter o bairro aos seus pés.

Localizado na Rua Hermes, você estará no ponto mais estratégico do Bairro Ana Lúcia, a poucos metros da Avenida Contagem, na divisa com o Bairro Santa Inês | BH.

Imagine a facilidade de encontrar tudo o que você precisa a menos de 500 metros de casa: desde bancos e supermercados até farmácias e as melhores academias da região.

A praticidade urbana permite que você resolva o seu dia a dia com uma curta caminhada, sem o estresse do trânsito ou a necessidade de retirar o carro da garagem

Projetos e OportunidadesTire suas dúvidas com a nossa Equipe.

Sua oportunidade de morar em um projeto imponente na Região do Bairro Santa Inês | BH.

Design moderno com a praticidade absoluta de ter tudo o que você precisa a uma curta caminhada de distância.

Coberturas

Coberturas DuplexResidencial Sylvia Miranda

Jl. Bandung Permai, No.6, Bandung

A partir de :R$1.102.000

Apartamentos Tipo

Apartamentos TiposResidencial Sylvia Miranda

Jl. Surabaya Jaya, No.10, Surabaya

A partir de:R$662.000